內湖民權東路六段店面

租金:302,380/月


開放空間

格局

31,401

管理費

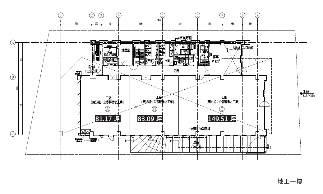
136.07

坪數


樓層: 1/ 5

車位: 一個3650元

地址: 臺北市內湖區民權東路六段11巷27號


聯絡人:洪先生

客戶太多!辦公室、店面不夠租了!屋主歡迎來電委託!!


內湖民權東路六段,特斯拉後面,全新廠辦出租,一樓整層三戶,兩戶起租,上下貨方便,面寬15米。

獨立冷氣,汽車可直接開進室內,挑高4米。另有二樓及四樓戶可選。歡迎打來詢問。

【坪數說明】【室內使用136.07坪】【權狀坪數232.6坪】
成交收取半個月租金作為服務費用!加LINE請直接說您要詢問的物件,感謝!
感謝各產業,檢測產業、幼兒園、月子中心、補習班、網購電商、慈善協會、建設開發公司、公關公司、瓦斯公司
長照機構、人力仲介、餐飲業、淨水器、電子鎖、半導體產業、藍芽通訊產業、半導體設備商、傳統產業
中央廚房、寢具家飾、飾品首飾進口商、印刷業、國際物流,連鎖牛肉麵店、手工藝教室、照明設備商等等支持!
專營雙北辦公室、店面、廠辦,買賣租賃都有歡迎委託!
*以上坪數皆以房屋權狀登記為準*

本案地圖